Возрастное ограничение 18+
Конструктивистские дома Уралоблсовета намерены отреставрировать в Екатеринбурге
Памятник архитектуры федерального значения долгое время не видел ремонта
Фото: Владислав Постников / Вечерние ведомости
Дома Уралоблсовета намерены отреставрировать в Екатеринбурге — научно-проектная документация на реставрационные работы памятника архитектуры конструктивизма федерального значения прошла историко-культурную экспертизу и выставлена на общественное обсуждение, которое продлится до 21 ноября.
Судя по выложенной на сайте Свердлохранкультуры документации, реставрировать планируют три из пяти корпусов комплекса — №№ 2, 4 и 5.
Жилой комплекс Уралоблсовета был построен в квартале улиц Хохрякова — Малышева — Сакко и Ванцетти в 1931—1933 годах при участии известного архитектора Моисея Гинзбурга и предназначался для служащих Уральской области. Он представляет из себя пять корпусов: один восьмиэтажный и четыре шестиэтажных, соединённых переходами. Во время войны в комплексе жил поэт Аркадий Коц — автор русскоязычного текста гимна «Интернационал».
Главный, восьмиэтажный корпус комплекса в послевоенное время был значительно перестроен и утратил свой первоначальный облик. Сейчас здания используются как жилые, хотя в начале своего существования представляли из себя многофункциональный комплекс, в который входили в том числе солярий и детский сад.
Судя по выложенной на сайте Свердлохранкультуры документации, реставрировать планируют три из пяти корпусов комплекса — №№ 2, 4 и 5.
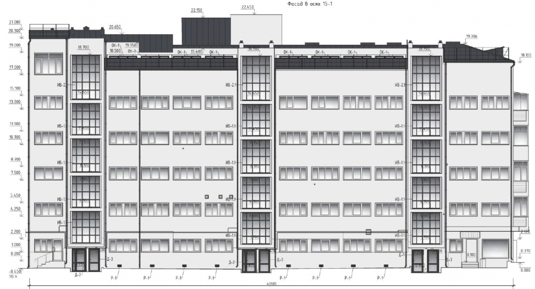
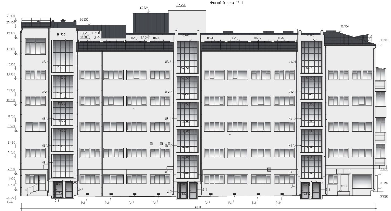
Корпус №2. Иллюстрация: научно-проектная документация
Корпус №4. Иллюстрация: научно-проектная документация
Корпус №5. Иллюстрация: научно-проектная документация
Жилой комплекс Уралоблсовета был построен в квартале улиц Хохрякова — Малышева — Сакко и Ванцетти в 1931—1933 годах при участии известного архитектора Моисея Гинзбурга и предназначался для служащих Уральской области. Он представляет из себя пять корпусов: один восьмиэтажный и четыре шестиэтажных, соединённых переходами. Во время войны в комплексе жил поэт Аркадий Коц — автор русскоязычного текста гимна «Интернационал».
Главный, восьмиэтажный корпус комплекса в послевоенное время был значительно перестроен и утратил свой первоначальный облик. Сейчас здания используются как жилые, хотя в начале своего существования представляли из себя многофункциональный комплекс, в который входили в том числе солярий и детский сад.
Восьмиэтажный корпус жилого комплекса до войны имел открытую террасу на верхнем этаже, а первый этаж частично стоял на колоннах
Получать доступ к эксклюзивным и не только новостям Вечерних ведомостей быстрее можно, подписавшись на нас в сервисах «Новости в Дзене» и «Google Новости».
Поддержать редакцию






Суд отказался признавать памятником здание Австрийской церкви, планируемым сносом которого возмутился Прилепин
В Екатеринбурге вновь обсуждают строительство высоток на месте скандальной «Бухты Квинс»
Власти Екатеринбурга обещают увеличить расходы на ремонт дорог на 40% в 2026 году